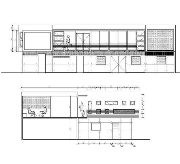
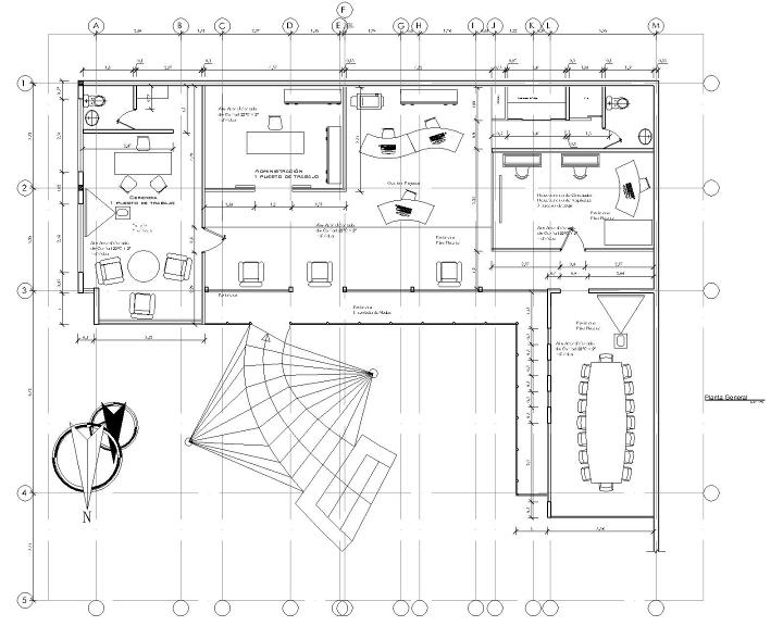
Proyecto  Oficinas Punto Blanco

Sector Norte,  Antofagasta

Aņo 2008